Hägersten - 2rok - 12mån - 14.899kr/mån

Responsgatan, 126 29 Hägersten

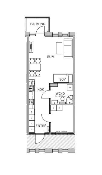
2:a - Telefonplan - Tillsvidare Vid Telefonplan bor du i ett modern området med närhet till det mesta. Tunnelbanestationen ligger enbart ca 400 meter bort och trafikeras av den Röda linjen som tar dig till Stockholm city på en kvart. Livsmedelsbutik finns runt hörnet och längre ner på gatan, såväl som runt Telefonplan finns flertalet populära restauranger, caféer och barer. Mysiga Svandammsparken ligger enbart ett stenkast bort och Västberga handel ligger på andra sidan motorvägen. Lägenheten är en välplanerad och yt-effektiv 2:a på 46 kvm. Det är moderna val gjorda med hög standard rakt igenom. Praktiskt arbetskök med maskinell utrustning bestående av induktionshäll, varmluftsugn, integrerad kyl, frys och diskmaskin. Vardagsrummet rymmer både matplats och soffa. Två sovrum varav det ena har förvaring i form av garderober. Badrummet är helkaklat med klinker på golv och här finns dusch, wc, tvättställ samt kombinerad tvättmaskin/torktumlare. Förvaring i form av garderober finns även i hallen. Lägenheten hyrs ut 1 år med förlängning. I hyran ingår värme, vatten och sophämtning. Internet, tv-abonnemang och hushållsel tecknas separat av hyresgästen. Lägenheten hyrs ut omöblerad. Uthyrningsperiod: 2026-05-01 - 1 år med möjlighet till förlängning --------------------------------- 2 room apartment - Telefonplan - Until further notice At Telefonplan you live in a modern area with proximity to most things. The metro station is only about 400 meters away and is served by the Red Line which will take you to Stockholm city in a about 15 minutes. Grocery store is around the corner and further down the street, as well as around the Telefonplan are several popular restaurants, cafes and bars. Cozy Svandammsparken is just a a few minutes away and Västberga handel is on the other side of the highway. Here you find a well-planned and surface-efficient 2 room apartment of 46 sqm. Modern choices with high standards have been made throughout the apartment. Practical working kitchen with mechanical equipment consisting of induction hob, hot air oven, integrated fridge, freezer and dishwasher. The living room can contain both dining area and sofa. Two bedrooms, one of which has storage in the form of wardrobes. The bathroom is fully tiled on both walls and floor and here is a shower, toilet, washbasin and combined washer / dryer. Storage in the form of wardrobes is also available in the hall. The apartment is available for 1 year with extension. The rent includes heat, water and waste collection. Internet, TV subscription and housekeeping are signed separately by the tenant. The apartment is rented out unfurnished. The landlord wishes that the residents are non-smoking. Rental period: 2026-05-01 - 1 year with the possibility of extension

No frauds
Bedrägerifritt
Safe contracts
Trygga avtal
Insurance
Hemförsäkring
Personal service
Personlig service
  • Betala ingenting nu
  • Kontrollerad annons
  • Träffas digitalt eller i bostaden

Leo, ansvarig hyreskonsulent

Leo, ansvarig hyreskonsulent
”Välplanerad 2:a med bra läge!”
Boendet
  • 2026-05-01
  • 46
  • Inte möblerad
  • 2027-05-01
  • 2 Rum
  • 7 tr
  • 6 har tittat på annonsen
Månadskostnad : 14 899:-
Inkluderar hyra och serviceavgifter
Boendeform : Hyresrätt
Kontakta
  • Betala ingenting nu
  • Kontrollerad annons
  • Träffas digitalt eller i bostaden
Bekvämligheter
  • Dusch
  • Badkar
  • Kök
  • Diskmaskin
  • Tvättmaskin
  • Torktumlare
  • Tvättstuga
  • TV
  • Hiss
  • Balkong/uteplats
  • Husdjur tillåtet
  • Barnvänligt
  • Handikappvänlig
Driftkostnader (inkluderat i hyran)
  • Värme
  • Vatten
  • Uppvärmt vatten
  • Sophämtning
Mot tilläggskostnad
  • El
  • Internet
Steg-för-steg guide
Ny på Samtrygg? Här är en
steg-för-steg guide
Steg-för-steg guide
Undrar du över något?
Till vanliga frågor & svar
FAQ
Kontakta

Leo, ansvarig hyreskonsulent

Leo, ansvarig hyreskonsulent
”Välplanerad 2:a med bra läge!”
Steg-för-steg guide
Ny på Samtrygg? Här är en
steg-för-steg guide
Steg-för-steg guide
Undrar du över något?
Till vanliga frågor & svar
FAQ