Olofstorp - 5rok - tillsv - 18.900kr/mån

Björsared, 424 71 Olofstorp

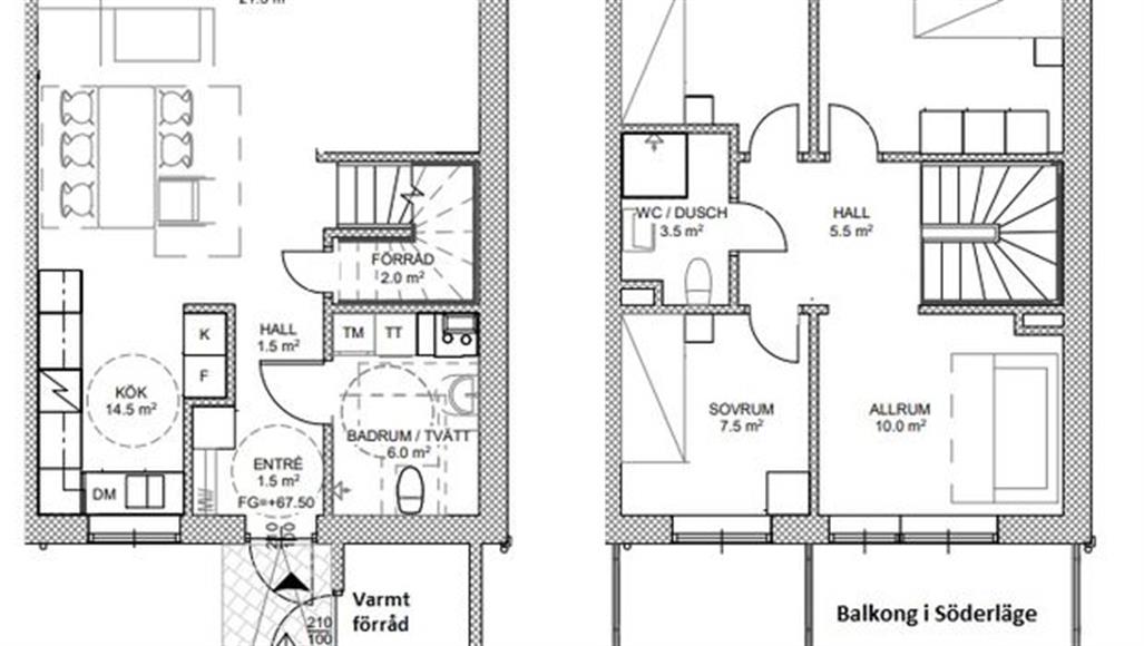
FÖRSTA HANDSKONTRAKT - TILLSVIDARE! Helt nybyggda radhus från 2023 med fantastisk planlösning och golv värmesystem! • 5 rum - 118 kvm; vardagsrum, kök, allrum, 3 st sovrum. • 2 st hel kaklat badrum/WC med golvvärme och spotlights. • 2 st varma förråd. • Golv värmesystem i hela entre-och överplan. • 2 st uteplatser, på både fram-och baksidan med sol från morgon till kväll! • 2 st parkeringsplatser ingår, med laddbox. • Spotlights i badrum/wc, kök och hall. Äkta marmorstenar i alla förnster, stora spegelskjutdörrar i hallen med mera. • Energieffektiv bostad med energieffektiva vitvaror. ENTRÉPLAN: I bottenvåningen välkomnas du av en stor kaklad hall med stora spegelsskjutdörrar och spotlights. Ett stort vardagsrum med stora fönster från tak till golv med äkta marmor stenar som ansluter direkt till den stora uteplatsen på baksidan, med fantastisk kvällssol! Fräscht kök med spotlights, och helt nya vitvaror som stor kyl&frys, diskmaskin, inbyggnadsmikro, spis, fläkt och ugn. Stort helkaklat WC/badrum med spotlights, helt ny tvättmaskin och torktumlare, och ett rymligt förråd. ÖVERVÅNING: Övervåningen består av 3st sovrum, helkaklat wc/badrum med spotlights, ett stort allrum med stora fönster som ansluter direkt till den stora balkongen i söderläge. Med fantastikt solläge på förmiddagen/eftermiddagen. Uteplats: •Stora uteplatser på både fram- och baksidan med sol från dag till kväll! •Balkong på övervåningen i söderläge med fantastisk solläge på för -och eftermiddagen. Området: Området är väldigt familjevänligt och tryggt och har bra kommunikation. Busshållplatsen är 500m bort med expressbuss som åker rätt ofta! Skolor från årskurs 0 till årkurs 9 finns inom 500m. Bensinstation och matställen finns i närheten. Nära till naturen och badplatser och barnaktiviter som fotboll med mera. Ingår i hyran: •2 parkeringsplatser, med laddbox. • Ett extra varmt förråd på utsidan! • Sophämtning. El/värme och vatten är individuellt och bekostas av hyresgäst.

No frauds
Bedrägerifritt
Safe contracts
Trygga avtal
Insurance
Hemförsäkring
Personal service
Personlig service
  • Betala ingenting nu
  • Kontrollerad annons
  • Träffas digitalt eller i bostaden

Fredrik, ansvarig hyreskonsulent

Fredrik, ansvarig hyreskonsulent
”Idylliskt radhus med perfekt läge!”
Boendet
  • 2026-05-01
  • 118
  • Inte möblerad
  • Tillsvidare
  • 5 Rum
  • 0 tr
  • 4 har tittat på annonsen
Månadskostnad : 18 900:-
Inkluderar hyra och serviceavgifter
Boendeform : Radhus
Kontakta
  • Betala ingenting nu
  • Kontrollerad annons
  • Träffas digitalt eller i bostaden
Bekvämligheter
  • Dusch
  • Badkar
  • Kök
  • Diskmaskin
  • Tvättmaskin
  • Torktumlare
  • Tvättstuga
  • TV
  • Hiss
  • Balkong/uteplats
  • Husdjur tillåtet
  • Barnvänligt
  • Handikappvänlig
Driftkostnader (inkluderat i hyran)
  • Sophämtning
  • Parkeringsplats
Mot tilläggskostnad
  • El
  • Värme
  • Vatten
Steg-för-steg guide
Ny på Samtrygg? Här är en
steg-för-steg guide
Steg-för-steg guide
Undrar du över något?
Till vanliga frågor & svar
FAQ
Kontakta

Fredrik, ansvarig hyreskonsulent

Fredrik, ansvarig hyreskonsulent
”Idylliskt radhus med perfekt läge!”
Steg-för-steg guide
Ny på Samtrygg? Här är en
steg-för-steg guide
Steg-för-steg guide
Undrar du över något?
Till vanliga frågor & svar
FAQ