Hisings Backa - 3rok - tillsv - 16.905kr/mån

Sägengatan 65, 422 58 Hisings Backa

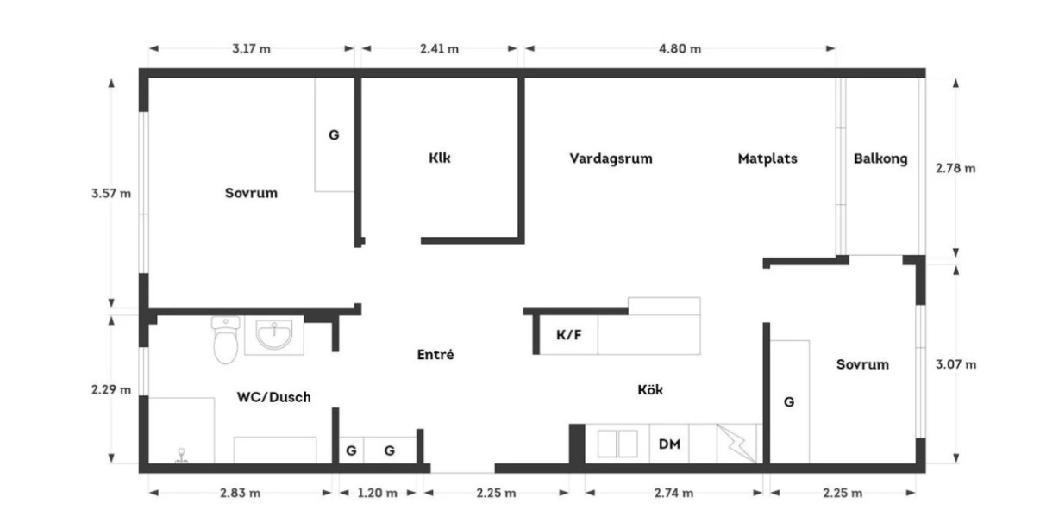
En välplanerad och rymlig bostad med två sovrum, generösa sociala ytor och smarta förvaringslösningar! Här erbjuds ett hem med öppen och social planlösning mellan kök, matplats och vardagsrum – perfekt för både vardag och umgänge. Det fina ljusinsläppet tillsammans med balkongen skapar en luftig och trivsam känsla i hela bostaden. Med två bra sovrum och en rymlig klädkammare får du både komfort och funktion i ett boende som passar såväl paret som den mindre familjen. Här bor du med närhet till service, kommunikationer och grönområden – ett hem att verkligen trivas i.

No frauds
Bedrägerifritt
Safe contracts
Trygga avtal
Insurance
Hemförsäkring
Personal service
Personlig service
  • Betala ingenting nu
  • Kontrollerad annons
  • Träffas digitalt eller i bostaden
Boendet
  • 2026-05-01
  • 70
  • Delvis möblerad
  • Tillsvidare
  • 3 Rum
  • 3 tr
  • 10 har tittat på annonsen
Månadskostnad : 16 905:-
Inkluderar hyra och serviceavgifter
Boendeform : Lägenhet
Kontakta
  • Betala ingenting nu
  • Kontrollerad annons
  • Träffas digitalt eller i bostaden
Bekvämligheter
  • Dusch
  • Badkar
  • Kök
  • Diskmaskin
  • Tvättmaskin
  • Torktumlare
  • Tvättstuga
  • TV
  • Hiss
  • Balkong/uteplats
  • Husdjur tillåtet
  • Barnvänligt
  • Handikappvänlig
Driftkostnader (inkluderat i hyran)
  • Värme
  • Vatten
  • Sophämtning
  • Internet
  • Betal-TV
  • Parkeringsplats
Mot tilläggskostnad
  • El
  • Uppvärmt vatten
Steg-för-steg guide
Ny på Samtrygg? Här är en
steg-för-steg guide
Steg-för-steg guide
Undrar du över något?
Till vanliga frågor & svar
FAQ
Kontakta
Steg-för-steg guide
Ny på Samtrygg? Här är en
steg-för-steg guide
Steg-för-steg guide
Undrar du över något?
Till vanliga frågor & svar
FAQ